- 上海良大閥門有限公司
- 電話:021-51875578
- 傳真:021-57443237
- 手機:13916747333
- 郵箱:a15566@126.com
- 地址:奉賢區工業綜合開發區942號
當前位置:首頁 >> 消防閥門
>> 旋流防止器 >> 不銹鋼旋流防止器 更新時間 2025-5-10 0:36:06
旋流防止器
| 不銹鋼旋流防止器 |
![]() |
產品名稱: | 不銹鋼旋流防止器 | |||||
| 型號: | LQD41X | ||||||
| 口徑: | DN32-500 | ||||||
| 壓力: | 1.0-2.5MPa | ||||||
| 材質: | 球鐵、鑄鋼、不銹鋼 | ||||||
|
|||||||
| 您正在瀏覽:【不銹鋼旋流防止器】 | |||||||
不銹鋼旋流防止器詳細介紹
不銹鋼旋流防止器產品概述:
不銹鋼旋流防止器是一種用于防止水箱(池)在輸送液體時產生旋流和防止空氣進入管道的特殊管件。其作用是安裝在水箱(池)水泵吸水管端口上,用來消除水箱(池)內的旋流,以確保水泵能一直全力起動并正常工作,避免空氣進入水泵產生氣蝕現象,能使水箱(池)里輸送液體的液面降到較低液位,以確保達到最大的流量輸送。本產品的設計制造嚴格按照歐盟標準EN12845的要求,且其性能符合GB50974-2014《消防給水及消火栓系統技術規范》的要求。旋流防止器適用于化工、能源、建筑、消防水工程等領域,特別是在消防取水池(箱)中使用,能保證有效容積被全部利用,提高消防水池有效利用率,減少死水區,實現節地要求。救援時,消防用水能得到最大限度的使用。
不銹鋼旋流防止器技術參數:

不銹鋼旋流防止器標準規范:
不銹鋼旋流防止器產品優點:
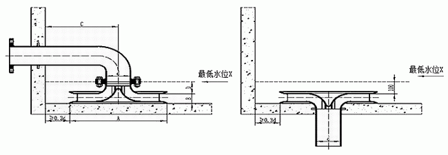
不銹鋼旋流防止器安裝示意圖:

不銹鋼旋流防止器安裝說明書:
不銹鋼旋流防止器外形結構圖:

不銹鋼旋流防止器連接尺寸:

國家規定:GB50974-2014《消防給水及消火栓系統技術規范》中第5.1.12條規定:當消防水泵從消防水箱吸水時,因消防水箱設置吸水井困難,為減少吸水管的保護高度要求吸水管上設置旋流防止器,以提高消防水箱的儲水有效量。
第5.1.13條規定:消防水泵吸水口的淹沒深度應滿足消防水泵在最低水位運行安全的要求,吸水管喇叭口在消防水池最低有效水位下的淹沒深度應根據吸水管喇叭口的水流速度和水力條件確定,但不應小于600mm,當采用旋流防止器時,淹沒深度不應小于200mm。
不銹鋼旋流防止器產品優點:
1、不銹鋼旋流防止器是按照歐盟標準EN12845的標準設計與制造,最低淹沒深度可至100mm而不產生旋流,大大提高了水池的有效利用率。
2、有效消除抽吸水過程中水箱(池)產生的旋流。
3、防止因旋流夾著空氣進入水泵,實現水泵高效能輸水,避免水泵產生氣蝕現象而被損壞。
4、旋流防止器的結構簡便而結實,實現經濟型安裝、免維護。
5、旋流防止器的材質可選用優質奧氏體不銹鋼06Cr19Ni10(304),也可選擇HT200鑄鐵及Q235碳鋼材質,防腐蝕性能強,使用壽命長。
6、符合GB/T 17219的衛生要求。
7、消防水箱旋流防止器可加裝過濾網。
不銹鋼旋流防止器安裝示意圖:

不銹鋼旋流防止器安裝說明書:
1、口徑:DN65-DN500(現有的產品,規格可拓展)。
2、安裝方式:可正裝(吸水水箱)也可以倒裝(高位水箱)。
3、安裝要求:旋流防止器的外緣與水池池壁應至少留有0.3d的間隙,d為吸水管到的公稱尺寸。
4、性能要求:在缺水過程中,水位下降為最低水位X時,水池頁面應無漩渦產生。
5、材質要求:奧氏體不銹鋼材質(304).
6、適用范圍:適用于化工、能源、消防、水工程等領域。
不銹鋼旋流防止器外形結構圖:

不銹鋼旋流防止器連接尺寸:

提示:本文中所有文字、數據、圖片均只適用于參考,需要了解更詳細的【不銹鋼旋流防止器】參數、選型、價格等請聯系我們,我們將竭誠為您服務!



















