- 上海良大閥門有限公司
- 電話:021-51875578
- 傳真:021-57443237
- 手機:13916747333
- 郵箱:a15566@126.com
- 地址:奉賢區工業綜合開發區942號
當前位置:首頁 >> 襯氟閥門
>> 襯氟過濾器 >> T型襯四氟過濾器 更新時間 2025-5-10 0:49:30
襯氟過濾器
| T型襯四氟過濾器 |
![]() |
產品名稱: | T型襯四氟過濾器 | |||||
| 型號: | SRTF46 | ||||||
| 口徑: | DN50-300 | ||||||
| 壓力: | PN1.0-6.4MPa | ||||||
| 材質: | 碳鋼、不銹鋼、雙相鋼等 | ||||||
|
|||||||
| 您正在瀏覽:【T型襯四氟過濾器】 | |||||||
T型襯四氟過濾器詳細介紹
T型襯四氟過濾器產品概述:
T型襯四氟過濾器是一種由金屬殼體承受載荷,并在其與物料接觸的內表面襯有氟塑料層,且利用由聚四氟乙烯材料制成的濾網來過濾其中的固體雜質,以保護下游管道設備免受損壞、污染和堵塞,達到穩定工藝要求,保障安全生產作用的襯氟T型過濾器。本產品采用氟塑料作為襯里材料,具有耐高溫、耐腐蝕、耐磨損等優良性能,適用于酸性、堿性、有機和無機溶劑等強腐蝕性介質過濾。
T型襯四氟過濾器采用模壓成型工藝方法生產,其將一定量的氟塑料(粉狀、粒狀、纖維狀、片狀和碎屑狀等)放入成型的模腔中,然后閉合,放在加熱爐內加熱到一定溫度,并在壓力作用下熔融流動,緩慢充滿整個型腔而取得型腔所賦予的形狀,隨著氟塑料化學反應程度的增加,熔體逐漸失去流動性變成不熔的體型結構而成為固體,經冷卻到一定溫度打開模具,而成為成品,從而完成模壓過程。

T型襯四氟過濾器零件材料:

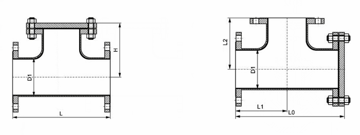
T型襯四氟過濾器外形結構圖:

T型襯四氟過濾器外形尺寸表:

T型襯四氟過濾器訂貨參數:
尊敬的客戶!如果您需要訂購我公司T型反折流式過濾器產品,咨詢時請說明法蘭執行標準、公稱通徑、公稱壓力、使用溫度、襯里材質、濾芯材料、過濾精度。本產品根據工況的不同需求,結構形式設計有直流式、正折流式和反折流式三種,咨詢時請告知選擇哪一種。
提示:本文中所有文字、數據、圖片均只適用于參考,需要了解更詳細的【T型襯四氟過濾器】參數、選型、價格等請聯系我們,我們將竭誠為您服務!



















