- 上海良大閥門有限公司
- 電話:021-51875578
- 傳真:021-57443237
- 手機:13916747333
- 郵箱:a15566@126.com
- 地址:奉賢區工業綜合開發區942號
當前位置:首頁 >> 船用閥門
>> 高速透氣閥 >> DF-ISO型高速透氣閥 更新時間 2025-5-10 0:24:07
高速透氣閥
| DF-ISO型高速透氣閥 |
![]() |
產品名稱: | DF-ISO型高速透氣閥 | |||||
| 型號: | DF-ISO | ||||||
| 口徑: | DN50-250 | ||||||
| 壓力: | 1.6-4.0MPa | ||||||
| 材質: | 鑄鐵、鑄鋼、不銹鋼 | ||||||
|
|||||||
| 您正在瀏覽:【DF-ISO型高速透氣閥】 | |||||||
DF-ISO型高速透氣閥詳細介紹
DF-ISO型高速透氣閥概述:
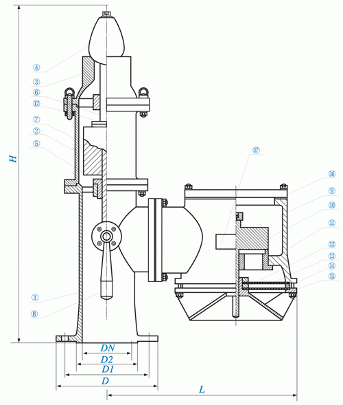
當液貨船舶需要裝載環氧丙烷類貨品時,必須配有DF-ISO型高速透氣閥。該閥門制造材料為304、304L、316L優質不銹鋼,壓力閥的開啟壓力一般設定在60KPa,真空閥與CF-ISO型等同,其結構圖見下圖。DF-ISO型高速透氣閥結構圖:

DF-ISO型高速透氣閥選用和安裝:

一般用于裝載環氧丙烷類的液貨船舶,均能裝載普通化學品。因此,每個液貨倉必須裝有CF-ISO型和DF-ISO型高速透氣閥各一個,其安裝方法如下圖。當船舶裝載環氧丙烷類貨品時,只要將CF-ISO型壓力閥強制關閉即可,反之,如裝載普通化學品時,只要開啟強制關閉裝置。裝卸貨前,應按運作要求進行閥門升降檢查。檢查時,必須同時檢查兩個閥的壓力閥和真空閥,因為該使用方法中的兩個閥門具有相互保險的作用,可以最大限度地防止貨艙超壓和失壓。依據DF型壓力/真空閥的流量范圍,可以安裝在DN125(含DN125)以下的透氣管上,連接法蘭由用戶任選。
DF-ISO型高速透氣閥壓力運行曲線圖:

DF-ISO型高速透氣閥主要性能參數:

提示:本文中所有文字、數據、圖片均只適用于參考,需要了解更詳細的【DF-ISO型高速透氣閥】參數、選型、價格等請聯系我們,我們將竭誠為您服務!



















