- 上海良大閥門有限公司
- 電話:021-51875578
- 傳真:021-57443237
- 手機:13916747333
- 郵箱:a15566@126.com
- 地址:奉賢區工業綜合開發區942號
當前位置:首頁 >> 閘閥
>> 平板閘閥 >> 無導流孔平板閘閥 | 無導流孔平板閘閥 |
![]() |
產品名稱: | 無導流孔平板閘閥 | |||||
| 型號: | Z43WF/Z543WF | ||||||
| 口徑: | DN50-1000 | ||||||
| 壓力: | 1.6-16.0MPa | ||||||
| 材質: | 鑄鋼、不銹鋼等 | ||||||
|
|||||||
| 您正在瀏覽:【無導流孔平板閘閥】 | |||||||
無導流孔平板閘閥詳細介紹
無導流孔平板閘閥應用范圍:
無導流孔平板閘閥適用于天然氣,石油,化工,環保,城市管道,燃氣管線等輸送管線,放空系統和汽儲存裝置上,用作啟閉設備。適用于天然氣開采和凈化的長輸管線。
無導流孔平板閘閥產品原理:
無導流孔平板閘閥是一種關閉件為平行閘板的滑動閥。其關閉件可以是單閘板或是其間帶有撐開機構的雙閘板。閘板向閥座的壓緊力是由作用與浮動閘板或浮動閥座的介質壓力來控制。如果是雙閘板平板閘閥,則兩閘板間的撐開機構可以補充這一壓緊力。
無導流孔平板閘閥結構特點:
無導流孔平板閘閥采用標準:
設計規范 |
結構長度 |
連接法蘭 |
試驗與檢驗 |
壓力-溫度 |
產品標識 |
JB/T5298 |
JB/T5298 |
JB/79 |
JB/T5298 |
GB9131 |
GB/T12220 |
API6D |
API6D |
ANSI-16.5 |
API6D |
ANSI B16.34 |
MSS SP-25 |
無導流孔平板閘閥性能規范:
設計等級 |
常溫下試驗壓力(MPa) |
適用溫度℃ |
適用介質 |
|||||||
殼體 |
左密封 |
左密封 |
低壓密封 |
“G”型 |
“D”型 |
普通型 |
“抗硫”型 |
“基本”型 |
||
公稱壓力PN(MPa) |
1.6 |
2.4 |
1.76 |
1.76 |
0.6 |
-29~50 |
-45~21 |
-2~121 |
H2S和CO2總含量大于500mg/m2的介質 |
石油天然氣、水等 |
2.5 |
3.75 |
2.75 |
2.75 |
0.6 |
||||||
4.0 |
6.0 |
4.4 |
4.4 |
0.6 |
||||||
6.4 |
9.6 |
7.04 |
7.04 |
0.6 |
||||||
磅級Lb |
150 |
3.0 |
2.2 |
2.2 |
0.6 |
|||||
300 |
7.7 |
5.6 |
5.6 |
0.6 |
||||||
無導流孔平板閘閥零件材料:
閥門/閥蓋 |
WCB |
WC6 |
A352-LCB |
A351-CF8M |
閘板 |
2Cr13+ENP |
20CrMoV+STL |
ANSO410+ENP |
ANSI316+ENP |
閥桿 |
2Cr13 |
2Cr13 |
A182-A6a |
A182-A316S |
閥座 |
25+PTFE |
20CrMoV+STL |
A105+PTFE |
A182-F316+PTFE |
填料 |
NBR/FPM |
柔性石墨/Flexible Graphite |
聚四氟乙烯/PTFE+FPM |
|
墊片 |
- |
|||
螺栓 |
35 |
35CrMo |
A193-B7M |
A193-B8 |
適用介質 |
水、油口、蒸汽 |
蒸汽、油品 |
丙烷、乙烯 |
硝酸類 |
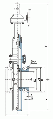
無導流孔平板閘閥外形結構圖:

無導流孔平板閘閥連接尺寸:
1.6MPa |
DN |
L |
D |
D1 |
D2 |
Do |
f |
b |
H |
H1 |
n-Φd |
|
凸面法蘭
RF(K)Z43WF-16C (K)Z543WF-16C (K)Z643WF-16C (K)Z943WF-16C |
50 |
178 |
160 |
125 |
100 |
250 |
3 |
16 |
584 |
80 |
4-Φ18 |
65 |
190 |
180 |
145 |
120 |
250 |
3 |
18 |
634 |
95 |
4-Φ18 |
|
80 |
203 |
195 |
160 |
135 |
250 |
3 |
20 |
688 |
100 |
8-Φ18 |
|
100 |
229 |
215 |
181 |
155 |
300 |
3 |
20 |
863 |
114 |
8-Φ18 |
|
125 |
254 |
245 |
210 |
185 |
350 |
3 |
22 |
940 |
132 |
8-Φ18 |
|
150 |
267 |
280 |
240 |
210 |
350 |
3 |
24 |
1030 |
150 |
8-Φ23 |
|
200 |
292 |
335 |
295 |
265 |
350 |
3 |
26 |
1277 |
168 |
12-Φ23 |
|
250 |
330 |
405 |
355 |
320 |
400 |
3 |
30 |
1491 |
203 |
12-Φ25 |
|
300 |
356 |
460 |
410 |
375 |
450 |
4 |
30 |
1701 |
237 |
12-Φ25 |
|
350 |
381 |
520 |
470 |
435 |
500 |
4 |
34 |
1875 |
265 |
16-Φ30 |
|
400 |
406 |
580 |
525 |
485 |
305 |
4 |
36 |
2180 |
300 |
16-Φ30 |
|
450 |
432 |
640 |
585 |
545 |
305 |
4 |
40 |
2440 |
325 |
20-Φ34 |
|
500 |
457 |
705 |
650 |
608 |
305 |
4 |
44 |
2860 |
360 |
20-Φ41 |
|
600 |
508 |
840 |
770 |
718 |
305 |
5 |
48 |
3450 |
425 |
20-Φ41 |
|
700 |
610 |
910 |
840 |
788 |
305 |
5 |
50 |
3960 |
460 |
24-Φ41 |
|
800 |
660 |
1020 |
950 |
898 |
305 |
5 |
52 |
4550 |
512 |
24-Φ41 |
|
900 |
711 |
1120 |
1050 |
998 |
250 |
5 |
54 |
5250 |
565 |
28-Φ48 |
|
1000 |
811 |
1250 |
1170 |
1110 |
250 |
5 |
56 |
5870 |
630 |
28-Φ18 |
|
2.5MPa |
50 |
178 |
160 |
125 |
100 |
250 |
3 |
20 |
584 |
80 |
4-Φ18 |
|
凸面法蘭
RF(K)Z43WF-25 (K)Z543WF-25 (K)Z643WF-25 (K)Z943WF-25 |
65 |
190 |
180 |
145 |
120 |
300 |
3 |
22 |
634 |
95 |
8-Φ18 |
80 |
203 |
195 |
160 |
135 |
350 |
3 |
22, |
388 |
100 |
8-Φ18 |
|
100 |
229 |
230 |
190 |
160 |
350 |
3 |
24 |
863 |
114 |
8-Φ23 |
|
125 |
254 |
270 |
220 |
188, |
350 |
3 |
28 |
940 |
132 |
8-Φ25 |
|
150 |
267 |
300 |
250 |
218 |
400 |
3 |
30 |
1030 |
150 |
8-Φ25 |
|
200 |
292 |
360 |
310 |
278 |
450 |
3 |
34 |
1277 |
168 |
12-Φ25 |
|
250 |
330 |
425 |
370 |
332 |
500 |
3 |
36 |
1491 |
203 |
12-Φ30 |
|
300 |
356 |
485 |
430 |
390 |
305 |
4 |
40 |
1701 |
237 |
16-Φ30 |
|
350 |
381 |
550 |
490 |
448 |
305 |
4 |
44 |
1875 |
265 |
16-Φ34 |
|
400 |
406 |
610 |
550 |
505 |
305 |
4 |
48 |
2180 |
300 |
16-Φ34 |
|
450 |
432 |
660 |
600 |
555 |
305 |
4 |
50 |
2440 |
325 |
20-Φ34 |
|
500 |
457 |
730 |
660 |
610 |
305 |
4 |
52 |
2860 |
360 |
20-Φ41 |
|
600 |
508 |
840 |
770 |
718 |
305 |
5 |
56 |
3450 |
425 |
20-Φ41 |
|
700 |
610 |
955 |
875 |
815 |
305 |
5 |
60 |
3960 |
460 |
24-Φ48 |
|
800 |
660 |
1070 |
990 |
930 |
305 |
5 |
64 |
4550 |
512 |
24-Φ48 |
|
900 |
711 |
1180 |
1090 |
1025 |
- |
5 |
66 |
5250 |
595 |
28-Φ54 |
|
1000 |
811 |
1305 |
1210 |
1140 |
- |
5 |
68 |
5870 |
660 |
28-Φ48 |



















