- 上海良大閥門有限公司
- 電話:021-51875578
- 傳真:021-57443237
- 手機:13916747333
- 郵箱:a15566@126.com
- 地址:奉賢區工業綜合開發區942號
當前位置:首頁 >> 低溫閥門
>> 低溫節流閥 >> 低溫節流閥 更新時間 2025-5-10 0:30:10
低溫節流閥
| 低溫節流閥 |
![]() |
產品名稱: | 低溫節流閥 | |||||
| 型號: | DL44W | ||||||
| 口徑: | DN25-350 | ||||||
| 壓力: | 1.6-32.0MPa | ||||||
| 材質: | 不銹鋼 | ||||||
|
|||||||
| 您正在瀏覽:【低溫節流閥】 | |||||||
低溫節流閥詳細介紹
低溫節流閥產品概述:
低溫節流閥適用于液化天然氣裝置,天然氣LPG、LNG儲罐,接受基地及衛星站,空分設備,石油化工尾氣分離設備,液氧、液氮、液氬、二氧化碳低溫貯槽及槽車、變壓吸附制氧等裝置上。輸出的液態低溫介質如乙烯、液氧、液氫、液化天然氣、液化石油產品等低溫節流閥材料重要性:
低溫節流閥材料非常重要,材質不合格,會造成殼體及密封面的外漏或內漏;零部件的綜合機械性能、強度和鋼度滿足不了使用要求甚至斷裂。導致液化天然氣介質泄漏引起爆炸。因此,在開發、設計、研制液化天然氣閥門的過程中,材質是首要關鍵的問題,經過多年制造,我司已積累了豐富的經驗,從設計、工藝到制造日趨成熟,并已開發形成了低溫閥門的系列產品。
低溫節流閥基本參數:
公稱壓力:1.6-32.0MPa
公稱通徑:DN25-350
適用介質:LO2、LN2、LAr等
適用溫度:-196~+350℃
連接方式:法蘭、螺紋、焊接
閥體、閥瓣:不銹鋼、銅合金
閥桿材質:不銹鋼
密封填料:PTFE
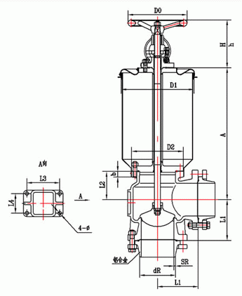
低溫節流閥外形結構圖:

產品型號 |
低溫節流閥 |
重量 kg |
||||||||||||||
產品代號 |
通徑 DN(mm) |
尺寸(mm) |
||||||||||||||
A |
dR |
sR |
L1 |
L2 |
L3 |
L4 |
Φ |
b |
D0 |
D1 |
D2 |
H |
h |
|||
DL44W |
100 |
800 |
108 |
4 |
140 |
100 |
120 |
70 |
15 |
20 |
320 |
255 |
195 |
260 |
310 |
98 |
DL44W |
125 |
800 |
133 |
4 |
165 |
115 |
135 |
80 |
15 |
22 |
360 |
350 |
210 |
263 |
313 |
110 |
DL44W |
150 |
800 |
158 |
4 |
180 |
135 |
150 |
90 |
17 |
22 |
360 |
350 |
255 |
263 |
323 |
135 |
DL44W |
200 |
800 |
208 |
4 |
215 |
180 |
185 |
120 |
17 |
22 |
450 |
446 |
295 |
335 |
405 |
170 |
DL44W |
250 |
800 |
260 |
5 |
260 |
210 |
220 |
150 |
22 |
25 |
450 |
446 |
390 |
335 |
435 |
253 |
DL44W |
300 |
1000 |
312 |
6 |
280 |
230 |
260 |
190 |
22 |
25 |
450 |
476 |
430 |
450 |
570 |
345 |
DL44W |
350 |
1000 |
362 |
6 |
310 |
260 |
280 |
200 |
22 |
25 |
450 |
526 |
480 |
450 |
590 |
463 |
提示:本文中所有文字、數據、圖片均只適用于參考,需要了解更詳細的【低溫節流閥】參數、選型、價格等請聯系我們,我們將竭誠為您服務!



















